熊本市中央区 南熊本 1R グラン南熊本511 4F-3

登録・更新日 2026年03月03日

南熊本の大型オフィスビルです!視認性も抜群!JR『南熊本』駅徒歩5分!
2025年10月大規模改修工事でお洒落なオフィスにリノベーション!

南熊本交差点(角地)にある大型オフィスビルです。
JR南熊本駅徒歩5分!多方面に交通アクセス良好です!
室内は眺望良好!男女別トイレ、給湯室は各階共有!
従業員さんに嬉しい共用ラウンジ無料開放!
大・小貸会議室(要予約、有料)あり!
お部屋が広すぎる場合、分割貸しも応相談!

外 観

外 観

オフィス内

オフィス内

オフィス内

オフィス内

エントランス入口

エントランス入口

エントランス

エントランス

エレベーターホール

エレベーターホール

共用トイレ

共用トイレ

共用トイレ

共用トイレ

共用給湯室

共用給湯室

共用給湯室

共用給湯室

地下1F 共有ラウンジ

地下1F 共有ラウンジ

地下1F 共有ラウンジ

地下1F 共有ラウンジ

貸会議室大

貸会議室大

貸会議室小

貸会議室小

機械式駐車場

機械式駐車場

屋根付駐輪場

屋根付駐輪場

所在地
熊本市中央区 南熊本
賃料
1,482,349
敷金
8,085,540
共益費
込み -
交通
JR 南熊本 駅 徒歩5分
間取り
1R
築年月
1984年7月築

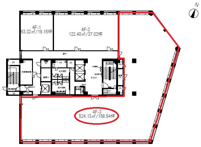
グラン南熊本511 4F-3 間取り

お問い合わせの際は、この番号をお知らせいただきますとスムーズにご案内することができます。

お問い合わせ番号 200027

グラン南熊本511 4F-3 の物件情報

所在地  地図はこちら
熊本県熊本市中央区南熊本5-1-1
交通
JR 南熊本 駅 徒歩5分
賃料
1,482,349 円
敷金
8,085,540円
礼金
なし
共益費
込み
建物構造
鉄骨鉄筋コンクリート(SRC造)
建築年月
1984年7月築
所在階
4 階部分 / 8 階建
建物面積
8637.69m²
床面積
専有面積
524.13m²
間取り
1R
駐車場
あり  敷地内駐車場
・平置き 20,000円/月※空きなし
・機械式(1段目)18,000円/月
・機械式(2段目)15,000円/月
・機械式(3・4段目)10,000円/月※空きなし
近隣月極借り上げ
・平置き 10,000円/月
取引態様
媒介
契約期間
2 年
備考
【設備】エレベーター2基、男女別共用トイレ、給湯室共用、個別空調(フロア毎)、喫煙所あり
【光熱費】電気代 個別検針
【エントランス】開放 7:00~19:00 ※警備カードで通用口から24時間入退室可
【館銘板作成費】55,000円
【警備カード】初回5枚 追加2,200円/枚
【火災保険】別途見積り
【駐輪場】屋根付駐輪場あり(初回ステッカー代 1,100円/台)
現況
入居可能日
即日可
小学校区
春竹小学校
中学校区
江原中学校
物件番号
200027
情報公開日
2026年03月03日
次回更新予定日
2026年03月17日


仲介手数料
1,482,349 円

グラン南熊本511 4F-3 の周辺地図

グラン南熊本511 4F-3のお問い合わせ

    お名前 *

    ご連絡先 *

    メールアドレス *

    備考欄